4 LOCALI, VIA BELVEDERE - ZOLA PREDOSA
in vendita a 275.000 €
Rif. BELVEDERE 17
Foto immobile/Planimetrie
Caratteristiche immobile
Camere: 2
Bagni: 1
Riscaldamento: Autonomo
71 MQ comm.
Stato immobile: Buono
Giardino: Comune
Garage: SI
Classe ener.: D
Consumo ipe: 99.92 kwh/mq
Locali: 4
Balcone: SI
Piano: Secondo
Cucina: Abitabile
Spese condominiali: 850 €
Spese rata: Annuale
Presentazione
Zola Predosa, via Belvedere:
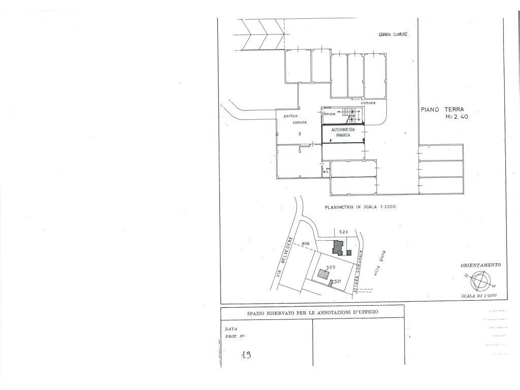
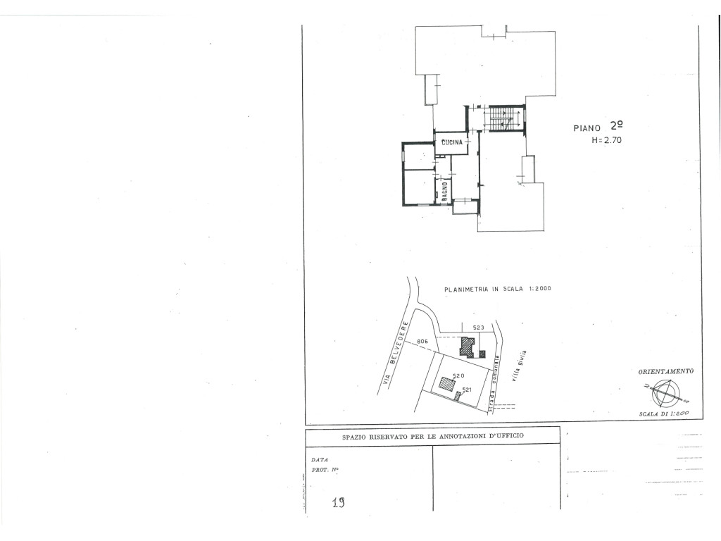
In zona tranquilla e riservata, immersa nel verde, proponiamo in vendita un appartamento quadrilocale situato al secondo piano.
L’appartamento, di 71 mq commerciali, è composto da: cucina abitabile, soggiorno con balcone; attraverso un disimpegno arredabile si accede alle due camere da letto ed il bagno finestrato con doccia e vasca.
Completa la proprietà un garage al piano terra di 19 mq.
La posizione è ideale per chi cerca un contesto signorile e tranquillo, senza rinunciare alla comodità dei servizi nelle vicinanze.
Per info contattaci allo 051/0335087 o alla mail info@immobiliaresaragozza.it
Valuta gratuitamente il tuo immobile con i professionisti del settore immobiliare industriale e residenziale.
In zona tranquilla e riservata, immersa nel verde, proponiamo in vendita un appartamento quadrilocale situato al secondo piano.
L’appartamento, di 71 mq commerciali, è composto da: cucina abitabile, soggiorno con balcone; attraverso un disimpegno arredabile si accede alle due camere da letto ed il bagno finestrato con doccia e vasca.
Completa la proprietà un garage al piano terra di 19 mq.
La posizione è ideale per chi cerca un contesto signorile e tranquillo, senza rinunciare alla comodità dei servizi nelle vicinanze.
Per info contattaci allo 051/0335087 o alla mail info@immobiliaresaragozza.it
Valuta gratuitamente il tuo immobile con i professionisti del settore immobiliare industriale e residenziale.
Dove si trova?
Contatto e richiesta informazioni
Invia una richiesta all'agenzia
BELVEDERE 17
Autorizzo il trattamento dei miei dati personali in base art. 13 del reg. eu 679/2016